少女哔哩哔哩视频在线看_今天的高清视频在线观看高清_中文字幕在线免费看线人_天香天堂免费观看电视剧

注冊 登錄
水產前沿網 | 網聚全球水產華人 返回首頁

chunhuanbao99的個人空間 http://m.fuqitext.com/?53048 [收藏] [復制] [分享] [RSS]

日志

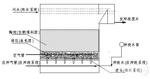
曝氣生物濾池的結構

已有 992 次閱讀2012-10-24 15:00 |個人分類:曝氣| 曝氣

 1.濾池池體

  濾池池體的作用是容納被處理水量和圍擋濾料,并承托濾料和曝氣裝置的重量。池的形狀有圓形、正方形和矩形三種,結構形式有鋼制設備和鋼筋混凝土結構等。


  2.濾料

  作為生物膜載體——填料的選擇是生物膜反應器技術成功與否的關鍵之一,它決定了反應器能否高效運行,所以填料的選擇總的應遵循以下原則。

  ①機械強度好  

  ②比表面積大

  ③形狀:載體的形狀以球狀為佳,  

  ④生物、化學穩定性好 

  ⑤表面電性和親水性  微生物一般帶有負電荷,而且親水,因此載體表面帶有正電荷特有利于微生物固著生長,載體表面的親水性同樣有利于微生物的附著,使附著的生物膜數量盡可能地多。

  ⑥孔隙率及表面粗糙度 

  ⑦密度

  3.承托層

       承托層主要是為了支撐濾料,防止濾料流失和堵塞濾頭,同時還可以保持反沖洗穩定進行。承托層常用材質為卵石或磁鐵礦.為保證承托層的穩定,并對配水的均勻性起充分作用,要求材質具有良好的機械強度和化學穩定性,形狀應盡量接近圓形,工程中一般選用鵝卵石作為承托層。

  4.布水系統

       曝氣生物濾池的布水系統主要包括濾池最下部的配水室和濾板上的配水濾頭。對于上向流濾池,配水室的作用是使某一短時段內進入濾池的污水能在配水室內混合均勻,并通過配水濾頭均勻流過濾料層,并且該布水系統除作為濾池正常運行時布水用外,也作為定期對濾池進行反沖洗時布水用。

  布水系統設計不合理或安裝達不到要求,使反沖洗時配水不均勻。會產生下列不良后果:

    ①整個生物濾池沖洗不均勻,部分區域沖洗強度大,部分區域沖洗強度小。通過生物絮凝作用吸附部分膠體顆粒,同時微生物新陳代謝過程中老化的生物膜脫落后也將截留在生物填料層內。這些雜質的存在顯著地增加了生物濾池的過濾能力,使處理能力下降;同時也使水溶液主體的溶解氧和生物易降解的有機物與生物膜上微生物之間的傳質效率下降,影響生物濾池對有機物的去除效率。如果反沖洗布水不均勻.使部分區域反沖洗達不到要求,該區域的生物填料中雜質沖洗不干凈,將影響生物濾池對污染物的去除效果。②沖洗強度大的區域,由于水流速度過大,會沖動承托層,混合,甚至引起生物填料的流失,有時也會引起布氣系統的松動危害。引起生物填料與承托層的對曝氣生物濾池造成極大危害。

  5.布氣系統

  曝氣生物濾池內的布氣系統包括正常運行時曝氣所需的曝氣系統和進行氣—水聯合反沖洗時的供氣系統兩部分。

  6.反沖洗系統

  反沖洗過程:先降低濾池內的水位并單獨氣洗,而后采用氣—水聯合反沖洗,最后再單獨采用水洗。在反沖洗過程中必須掌握好沖洗強度和沖洗時間,既要達到使截留物質沖洗出濾池.又要避免對濾料過分沖刷,使生長在濾料表面的微生物膜脫落而影響處理效果。

  7.出水系統

  曝氣生物濾他出水系統有采用周邊出水和采用單側堰出水等。在大、中型污水處理工程中,為了工藝布置方便,一般采用單側堰出水較多.


雞蛋

雷人

漂亮

酷斃

鮮花

評論 (0 個評論)

facelist doodle 涂鴉板

您需要登錄后才可以評論 登錄 | 注冊

Archiver|手機版|關于我們|廣告業務|加入我們|聯系方式|免責聲明|水產前沿網 ( 粵ICP備10068752號  

GMT+8, 2026-2-23 21:37 , Processed in 0.123463 second(s), 18 queries .

Powered by Discuz! X2.5

Copyright © 2008-2012 Design: Comiis.Com

回頂部